Trilocale in vendita

Torino, Corso Moncalieri - Cavoretto
€ 265.000
100 Mq 100 Mq
2 bagni 2 bagni

Trilocale in vendita

Torino, Corso Moncalieri - Cavoretto

Descrizione annuncio

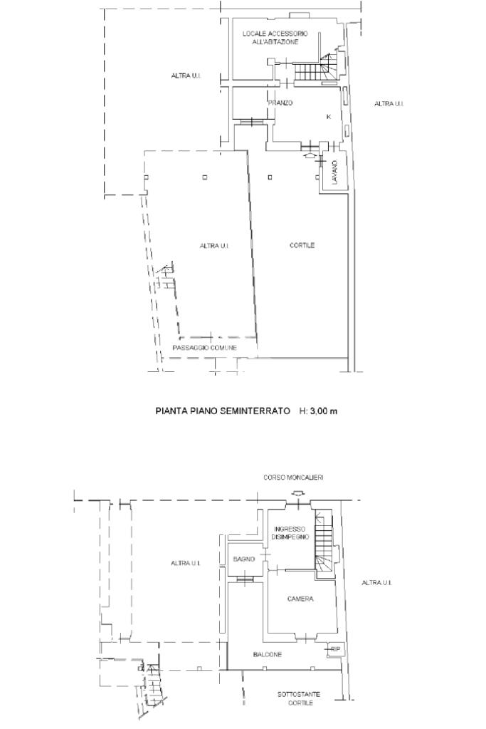
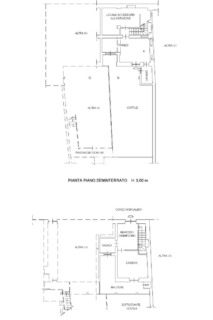
In Corso Moncalieri, zona Cavoretto, proponiamo appartamento su bilivello, di circa 100 mq, completamente ristrutturato, in palazzina d'epoca del 1900. Viene composto da due camere, sala, cucina e doppi servizi. Un cortile privato offre uno spazio esterno riservato, ideale per momenti di relax. Inoltre, un terrazzino aggiunge un ulteriore tocco di vivibilità all'appartamento. Completa la proprietà un locale deposito, utile per organizzare al meglio gli spazi. Questa soluzione rappresenta un'opportunità imperdibile per chi desidera vivere in una zona tranquilla, senza rinunciare alla comodità della città.

Contattaci per maggiori informazioni allo 011.882093 o passa a trovarci in agenzia, siamo in Corso Casale 71, Torino.

Mostra tutto

Nelle vicinanze

Trasporto pubblico Trasporto pubblico
Spezia
Spezia
910 m
Carducci-Molinette
Carducci-Molinette
1,1 Km
stazione di Torino Lingotto
stazione di Torino Lingotto
2,1 Km
stazione di Torino Porta Nuova
stazione di Torino Porta Nuova
2,8 Km
Giuria
Giuria
1,7 Km
Ricariche auto elettriche Ricariche auto elettriche
Lingotto - 8 Gallery - Parcheggio E
1,2 Km
Lingotto - 8 Gallery - Parcheggio B1
1,4 Km
BECHARGE BENNET Centro Commerciale Millecity Center
1,8 Km
Bluetorino Via Giordano Bruno
1,9 Km
evway TO Turati
2,2 Km
Scuole Scuole
Scuole
590 m
Scuola Media Matteotti
620 m
Parato primary school
670 m
Borgarello nursery school
730 m
Media "Fermi"
740 m
Farmacia Farmacia
Farmacia Pilonetto S.A.S.
110 m
Farmacia
380 m
Comunale 46 Afc
670 m
Farmacia Cavoretto
890 m
Farmacia Torino Spezia
930 m
Ospedali Ospedali
Ospedale Infantile Regina Margherita
440 m
Ospedale CTO
510 m
Ospedale Ginecologico-Ostetrico Sant'Anna
520 m
Ospedale CTO - Emergency
540 m
Ospedale Sant'Anna - Emergency
550 m
Supermercati Supermercati
Crai
120 m
Pam
820 m
Crios
900 m
Carrefour
940 m
Prestofresco
960 m
Negozi Negozi
Blu Scarpe... Abbigliamento
790 m
Alimentari Cavoretto
900 m
Negozi
910 m
El pan d'na Volta
910 m
Coccinella Rosa
920 m
Bar Bar
Frutteria Tropicana
440 m
Conte Max
580 m
Gungola
650 m
Caffè del Parco
690 m
Caffetteria Magister
780 m
Ristoranti Ristoranti
Pantagruele
160 m
Ristorante Pizzeria Alberoni
180 m
La Svolta
310 m
Trattoria
620 m
Va Pensiero
670 m
Mostra tutto

Caratteristiche

Rif.:
61158256
Piano:
Su più livelli
Terrazzi:
1
Camere da letto:
2
Arredamento:
Parziale
Condizionamento:
Autonomo
Mostra tutto
Prezzo Prezzo
€ 265.000
Rata mutuo Rata mutuo
€ 1.249 / mese
Spese annue Spese annue
€ 0
Proponi il tuo prezzoProponi il tuo prezzo

Classe Energetica

D
D
D
D
D
D
D
D
D
EP globale non rinnovabile:
170.00 kW h/m² anno
EP invernale del fabbricato:
EP estiva del fabbricato:
Anno di costruzione:
1900
Riscaldamento:
Autonomo
Tipo impianto:
A radiatori
Tipo alimentazione:
Metano

Ti interessa visionare l'immobile?

Fissa un appuntamento  Fissa un appuntamento

Richiedi informazioni

Clicca su Leggi per aprire l'informativa
* Questi campi sono obbligatori

Calcola il tuo mutuo

Semplice e senza impegno
Anticipo

( % )
Mutuo

( % )

pochi semplici passi

inserisci i tuoi dati
Questionario completato
Grazie per aver richiesto un appuntamento senza impegno con un nostro Consulente del Credito e Assicurativo.

Hai inserito correttamente tutti i dati necessari e a breve riceverai una e-mail con un link da convalidare per inviare i tuoi dati.
Affiliato
Studio Crimea Sas
Corso Casale, 71 10121 Torino (TO)

Il nostro staff


  • Sonia Bennardo
    Affiliata

  • Vanessa Bennardo
    Coordinatrice

  • Vincenzo Campolongo
    Affiliato

  • Federico Aleati
    Affiliato

  • Federica Nuzzi
    Collaboratrice
Corso Casale, 71 10121 Torino (TO)
Zona: Collina-Gran Madre-Borgo Po-Crimea-Cavoretto
Mostra su mappa
Affiliato
Studio Crimea Sas
Corso Casale, 71 10121 Torino (TO)

2026 Tecnocasa Franchising S.p.A. - P. IVA 08365160152 - Via Monte Bianco 60/A 20089 Rozzano (MI). Ogni agenzia ha un proprio titolare ed è autonoma. Privacy policy | Policy utilizzo | Cookie policy